--   |  设为首页

帮忙装修网

中山

[切换]

一个户型有20多种设计方案,20多个平面图来看看

来自:中山帮忙装修网 日期:2019-05-18 23:30:11 11583 次 分享到:
导读:
一个设计师有一个创意,一个户型有20多种创意,有20多种设计方案,中山装修公司网今天邀请大家一起来欣赏这20多个设计创意,看看你更喜欢哪一种设计方案。

关于方案

一个房屋能够出现无数方案

每个方案都有其对应出发点

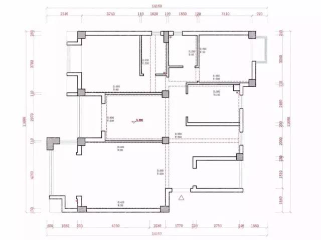
先了解一下房屋原始结构


原始房屋结构图


面对一个这样的户型空间你会有何思路呢?

所有的方案都有其对应的目标我们才能合理


1. 三口之家 の 孩子偶尔回来住


很多都市家庭都是如此

孩子从小学校都在寄宿

自身也无特殊喜好兴趣

故房屋中无需更多功能


2. 三口之家 の 家里有个小酒馆


家中书房使用频率不高

分化空间做卧室衣帽间

本案家中男主甚是爱酒

故将餐厅厨房空间调整

形成水吧与品酒的空间


3. 三口之家 の 心里有个豪宅梦


原结构分布空间较为呆板

屋主向往豪宅的宽敞大气

本案将空间进行完全开放

圆形餐厅即为动线中枢也

成为空间中的聚焦点所在


4. 五口之家 の 我家都是成年人


每个卧室都具备完善的功能

门厅正前由冰箱产生透景

主卧通过借位形成衣帽间

儿子房间也具备收纳书桌


5. 五口之家 の 我要一个大餐厅


餐厅厨房的位置与形式调整

形成水吧吧台等功能的延伸

餐厅空间也更为宽敞与舒适


6. 五口之家 の 我要一个游戏区


主卧的位置调整使功能完善

主卧空间形成独立娱乐空间

餐厅空间也较为灵活与宽敞


7. 新婚夫妻 の 花草狂人



新婚夫妻喜爱种植花草

将中间阳台作为绿植区

供给 客/餐/卧 空间景观

主卫内考虑浴缸更小资


8. 丁克夫妻 の 音乐狂人


丁克夫妻故尝试洗手间创新

通过洗手间的灵活变化满足

公卫+主卫+泡澡+梳妆组合

右上角的空间作为琴房空间


9. 丁克夫妻 の 设计搭档


设计师应了解自己的办公情况

需要大桌子/桌子容易乱

故本案扩大书房空间且稍隐蔽


10. 单身男性 の Party达人


party达人家中需考虑灵活多样

吧台是必备单品.空间需要开放

家中来客多故洗手间组合灵活


11. 单身女性 の 生活达人


单身女性.懂生活.厨餐一体是必备

浴缸泡澡是提升.空间景观是充实


12. 三口之家 の 孩子十八


这个思路让主卧功能集合在右方

使得公共空间客厅餐厅空间宽敞

儿子卧室也符合成年人使用需求


13. 三口之家 の 解放厨房


当厨房解放出来.空间将无比通透.

选择开发厨房的主人也较为小资

故主卧洗手间也考虑了丰富功能


14. 六口之家 の 男主爱LOL


当一个家庭人员达到六位.

空间的分配将产生巨大难度

满足卧室数量也需满足功能


15. 六口之家 の 孩子年幼


这个构思小孩房的组合是重点

关系好的时候打通两个房间玩

闹矛盾时关上门各有各的空间


16. 六口之家 の 男女有别


当孩子慢慢长大.各自需要更大空间.

同时也各自需要更好的隐私.故分开.


17.  五口之家 の 阳台/吧台 


在初期十六个方案中有几个五口之家的定义

但都只能在保留吧台或保留生活阳台做取舍

(详看 4.5.6 三个方案)

希望能二者兼得故产生了一下方案


在这个方案中将餐厅与吧台置于对角线上

节约空间生活阳台可放置而保留客厅阳台

方案内部空间分配与动线也相应获得调整


18. 三口之家 の 让家像PA


本案定位客户期望在家中进行聚会

那么对空间的宽敞度须有要求

聚会空间少不了吧台若为中枢更理想


这个方案将大空间客餐*吧台置于对角线

使得空间在不占用大量面积前提下开放

同时让水吧台作为整个空间的中枢位置


19. 单身公寓 の 女人之家


单身公寓不意味着要把所有空间开放

缺安全感的女性需要小空间的安全感

功能完善.同时预留客房以备父母来宿


单身女性的空间定位使空间更为柔美

同时使功能细致 书房/泡澡/更衣室/梳妆

睡眠区保证舒适大小不过大保证安全感


20. 三口之家 の 在家开PA*2


当出现一个对角线方案后

希望尝试另一个方向的对角线进行分配

另一个角度的对角线分配



21. 二代丁克 の 年轻二人世界


与父母同住的丁克族.年轻人需要私密空间


本案将父母空间与年轻夫妻分离

将年轻夫妇空间功能细致完善

使得年轻夫妻有自己更多私密空间

长按二维码,关注帮忙装修网公众号,了解更多装修资讯↓↓↓


或拨打免费热线:13822775923

已成功招标53523